Домокомплекты
Индивидуальные проекты
Контакты
О нас
Навигация
Интерьеры
Технология
Серия DKT03
Серия DKTs
Серия T
Серия DKT05
Серия DKT07
Серия DKT L
Серия DKT Keram
Загородные отели
Выставки
Домокомплекты
Индивидуальные проекты
Контакты
О нас
Интерьеры
Технология
DKT03
DKT05
DKTs
DKT L
T SERIES
DKT Keram
DKT M 251
Жилой дом на участке с рельефом
Вход на уровень 1-го этажа
Вход на уровень 1го этажа
Открытая терраса
Открытая терраса
Крытая терраса
Парковка
Открытая терраса
Консоль на уровне +6.400 от границы дороги
Консоль на уровне +6.400 от границы дороги
Граница участка
Подпорная стенка
Подпорная стенка
Дорога
Дорогга
Граница возможной застройки на уровне участка
Размещение объекта на участке
Общая приведенная площадь строения 250.7 м2
При подсчете общей приведенной площади для неотапливаемых помещений и террас используются понижающие коеффициенты
План на уровне парковки
При подсчете общей приведенной площади для не отапиваемых помещений и террас используются понижающие коеффициенты
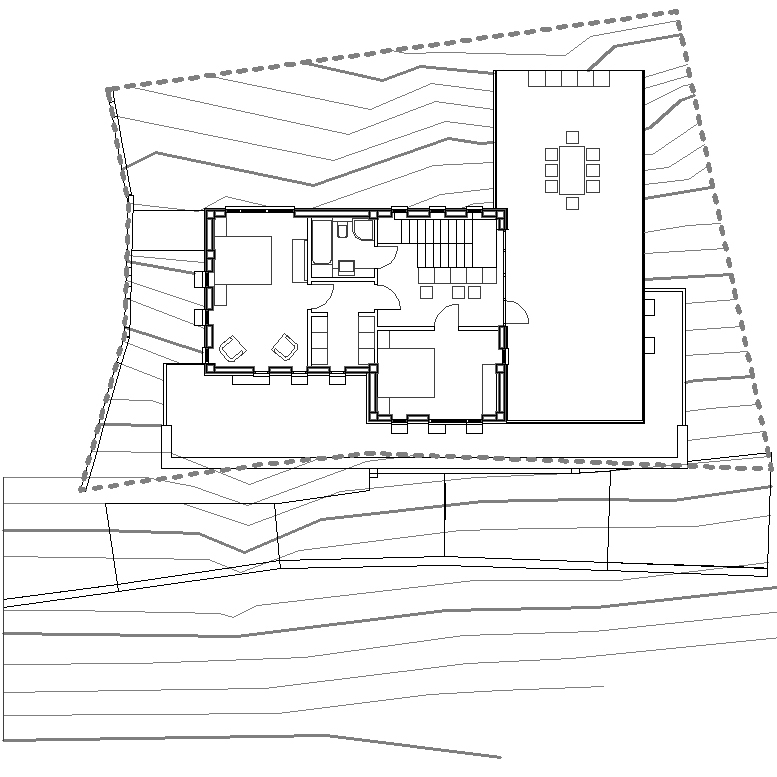
План 0 го этажа
Приведенная площадь - 30.2 м2
Приведенная площадь - 61 м2
1
9
2
3
4
5
6
7
8
46,5 м2
8,2 м2
65,4 м2
10,8 м2
3,4 м2
1,6 м2
1,4 м2
6,7 м2
1. Крытая парковка
2. Лестница
8. Частично открытая терраса 0го этажа
3. Прихожая
4. Коридор
5. Сан. узел
6. Душевая
7. Сауна
Возможно размещение круглогодичного СПА
Вид на склон
План 1 го этажа
При подсчете общей приведенной площади для не отапиваемых помещений и террас используются понижающие коеффициенты
План 2 го этажа
Приведенная площадь - 70.5 м2
Приведенная площадь - 89 м2
10
11
12
14
13
15
16
17
18
19
9
20
21
8,9 м2
20,5 м2
28,8 м2
4,6 м2
15,7 м2
5,1 м2
8,8 м2
67,4 м2
12,1 м2
5,4 м2
7,5 м2
20,6 м2
14,7 м2
9. Лестница
10. Кухня - Столовая
11. Гостиная
12. Гардеробная
13. Спальня
14. Сан. узел
15. Крытая терраса
21. Открытая терраса 2го этажа
16. Холл 2го этажа
17. Сан. узел
18. Гардеробная
19. Спальня
20. Спальня
Терраса летней столовой
Вид на склон
Терраса солярий с возможностью размещения бассейна
Пешеходный резервный вход
Восточный фасад
+9.800
+9.800
0.000
0.000
+6.400
+3.200
+6.400
+3.200
-3.200
-3.200
-3.800
-3.800
Западный фасад
Южный фасад
Вид с северного склона
Разрез 1-1
Разрез 2 -2
Второй этаж
Уровень парковки
Нулевой этаж
Первый этаж
Записаться на консультацию
На главную
Записаться на консультацию
Для продолжения нашего диалога с Вами, необходимо заполнить информацию о вашем проекте.
Тип объекта
Индивидуальный жилой дом
База отдыха
Загородные отели
Гостевые дома
Серийные проекты по технологии DKT HOUSE
Другое
Планируемая площадь объекта
Имя
Телефон
Удобное время для связи
E-mail
Отправить
Нажимая на кнопку, вы даете согласие на обработку своих персональных данных
Посмотреть проекты домов для постоянного проживания
Дома для постоянного проживания
City home AB230 индивидуальный проект
Индивидуальный жилой дом для городской малоэтажной застройки площадью 230 м2. Архитекторы: Левин А.Н. Авдеев И.Д
Дом на склоне
Индивидуальный жилой дом 116м2. Архитекторы: Левин А.Н. Авдеев И.Д.
City home DTN 300
Индивидуальный жилой дом для городской малоэтажной застройки площадью 315 м2. Архитекторы: Левин А.Н. Авдеев И.Д
KV-400
Индивидуальный жилой дом 400 м2. Архитекторы: Левин А.Н. Авдеев И.Д
City home AB200 индивидуальный проект
Индивидуальный жилой дом для городской малоэтажной застройки площадью 217 м2. Архитекторы: Левин А.Н. Авдеев И.Д
RZ-1500
Индивидуальный жилой дом 1500 м2. Архитектор: Левин А.Н.